Hebraica Golf House

Reforma Club de Golf - 2012
Proyecto

Arq. Asociado Matias Segal

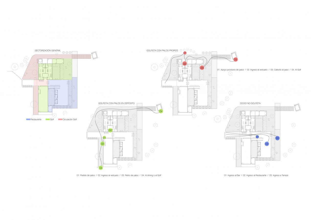
Una reorganización. Se propone ordenar y optimizar cada sector del edificio a partir de la estructura existente. Manteniendo la ubicación actual de las respectivas áreas, proponemos una reorganización de las mismas para lograr un mejor funcionamiento. Una planta ordenada. Con intervenciones estratégicas, se ofrece la independencia de usos y circulaciones entre el golfista y el que no lo es. De esta manera todo fluye mejor. Y el encuentro entre ambos se da cuando es deseado. El entorno es único. Rodeado de un verde intenso y una gran variedad de árboles, desde el momento en que uno ingresa al edificio, dicho paisaje pasa a ser parte de la experiencia, del recorrido, del uso y disfrute de cada sector. Un proyecto ambicioso. Un cambio radical a partir de intervenciones estudiadas minuciosamente desde el punto de vista funcional y estético. Se moderniza y le da vida al edificio manteniendo las raíces del mismo.


Warning: count(): Parameter must be an array or an object that implements Countable in /home/limacrha/domains/limacrea.com/public_html/proyecto-detalle.php on line 45
Hebraica Golf House

edificio existente

Hebraica Golf House

fotomontaje propuesta

Hebraica Golf House

vista sur - acceso

Hebraica Golf House

vista norte - golf

Hebraica Golf House

vista oeste

Hebraica Golf House

vista este

Hebraica Golf House

planta

Hebraica Golf House

sectorización y circulación

Proyecto Anterior

Siguiente Proyecto