Vivienda Unifamiliar - 2010 - 2011                     
Proyecto y Dirección de Obra
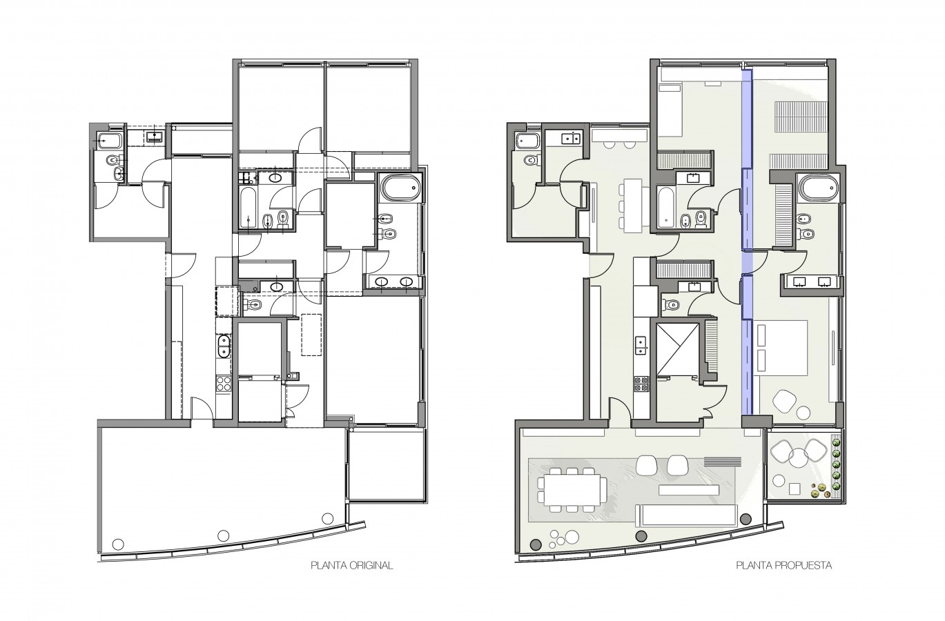
	Una de las necesidades planteadas por el cliente fue la necesidad de tener mucho espacio de guardado. Para ello, hemos demolido el muro que cruza longitudinalmente el departamento, y lo hemos reemplazado por un mueble de piso a techo, diseñado a medida, variando su uso de acuerdo a la necesidad.
	
	A partir de una equilibrada combinación de espacios, materiales, colores e iluminación, hemos remodelado este departamento de 155m2 logrando ambientes que se destacan por su calidez, luminosidad y funcionalidad. 
 
	                						 
	                						 
	                						 
	                						 
	                						 
	                						 
	                						 
	                						 
	                						 
	                						 
	                						 
	                						 
	                						 
	                						 
	                						 
	                						 
	                						 
	                						 
	                						 
	                						 
	                						